リフォーム・リノベーション
建築CAD A's (エース)
建築CAD A's (エース)
A's でリノベ提案をDX
A's でリノベ提案をDX
人口減少や資材高騰の影響により、リフォーム・リノベーション需要は高まりを見せています。
しかし、競争が激化する市場で選ばれるためには「提案までが早く、正確かつわかりやすい提案」であることが重要です。
「A's(エース)」は、リノベーション提案のDX化を支援し、限られた人員でも高品質な提案を可能にします。



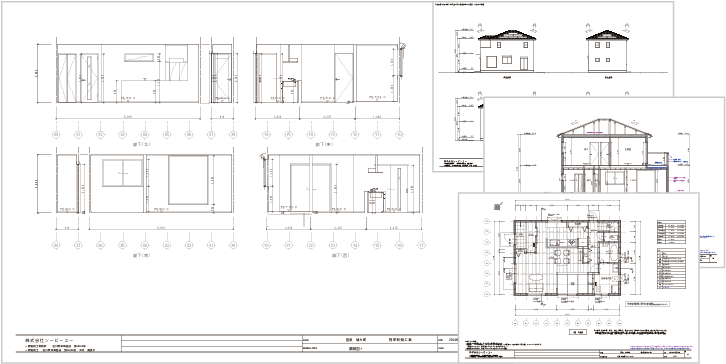
既存図と計画図を同時管理し、1クリックで表示切り替え。内法寸法表示にも対応しています。
入力済みのデータをもとに、面積や部材などの各種数量を自動で拾い出せ、改修範囲についても面積を自動算出。積算や見積の根拠として活用でき、業務をスムーズに進められます。

平面図上で増築・減築や断熱などの工事範囲を線種やハッチングで視覚的に表現。残す部分と手を加える部分を明確に区別でき、関係者間で情報を共有しやすくなります。

建具をそのまま利用する場合に「既存」と注記し数量算出や建具表から除外。新設建具は建具仕様が注記されるため、図面上で既存と新設を区別でき、誤発注や見積精度の低下を防止できます。

平面図上で撤去柱・新設柱などを指定できます。柱の違いを図面上で明示することで、補強や撤去工事を伴う計画を分かりやすく提示でき、設計者と施工者が認識を合わせやすくなります。

床面積に対する収納面積比率(収納率)を算出。区画や部屋ごとに収納の高さを割合で指定することも可能です。収納率の「見える化」は、お客様の満足度向上につながります。

基本入力から各種図面を一括で自動生成。加筆・修正は、関連する図面に反映され、設計業務において課題となる整合性を保ち、設計業務を効率的に進められます。
プランの入力と同時に生成される3Dパースでは、素材を直感的に編集できます。外壁材や屋根材、内装材は商品を指定し、貼り付けたい箇所をクリックするだけで瞬時にパースに反映。建具や水回りなどの素材も充実しており、メーカー検証済み素材のため、高い再現性を誇ります。
お施主様の目の前でリアルタイムに素材を切り替えられ、打ち合わせ時に効果的です。
間取り・屋根などの必要最低限の入力で、外観・内観パースやパノラマパースなどのプレゼン資料を自動生成できます。CADに不慣れな方でもスタイルや視点を選ぶだけで高品質な資料を短時間で作成できるため、初回提案の質とスピードの向上や属人化の防止に繋がります。


建具の開口や高さなどの寸法をパース上に表示。家具と壁の間や、棚板の間隔、コンセント・スイッチの高さなど、平面だけではわかりにくい寸法を3D上で測定できます。また、家具などの移動時もリアルタイムに壁との距離を表示します。

既存図と計画図の鳥瞰図を出力し、改修前後を比較できます。改修部分のみのカラー表示や提案用プレゼンボードにより、お施主様にビフォーアフターをわかりやすく提示できます。
「Madric Drive」は、パースや図面など物件に関するさまざまな資料をクラウド上で保存・共有できるデータ共有サービスです。
「専用ページ」機能で資料をまとめて共有でき、インターネット環境があればお施主様は好きな時に資料を確認できます。「専用ページ」には、アクセス状況や各資料の閲覧回数などがわかるモニタリング機能に加え、お施主様と直接コミュニケーションが取れるトーク機能なども搭載。お施主様の関心度を把握しやすくなり、最適な提案タイミングで効果的なフォローと営業効率の向上につながります。
「A’s 3D Player」は、A’sで作成した住宅3Dデータをスマートフォンやタブレットで手軽に閲覧できる専用アプリです。
お施主様はアプリを無料で利用でき、時間や場所を選ばず住宅の細部まで確認できるため、完成イメージの共有がスムーズになります。また、よく見られている住宅を把握できるため、お施主様の好みや要望を引き出しやすく、より訴求力の高い提案につながります。日当たりシミュレーションやお子様も楽しめる宝探しなど多彩な機能を搭載しており、特別感のある提案で感動を与え、契約獲得にも大きく貢献します。
本件について、弊社担当(担当拠点)またはお問い合わせフォームにてお気軽にお問い合わせください。
フォームをご利用の際は、弊社で内容を確認後、お客様にご連絡させていただきます。